Liv International

9am - 7pm020 7449 0449

Description

Summary - Bedrooms 4 | Bathrooms 3 | Receptions 1

A brand newly refurbished, interior designed house located in a desirable gated development in St John's Wood.

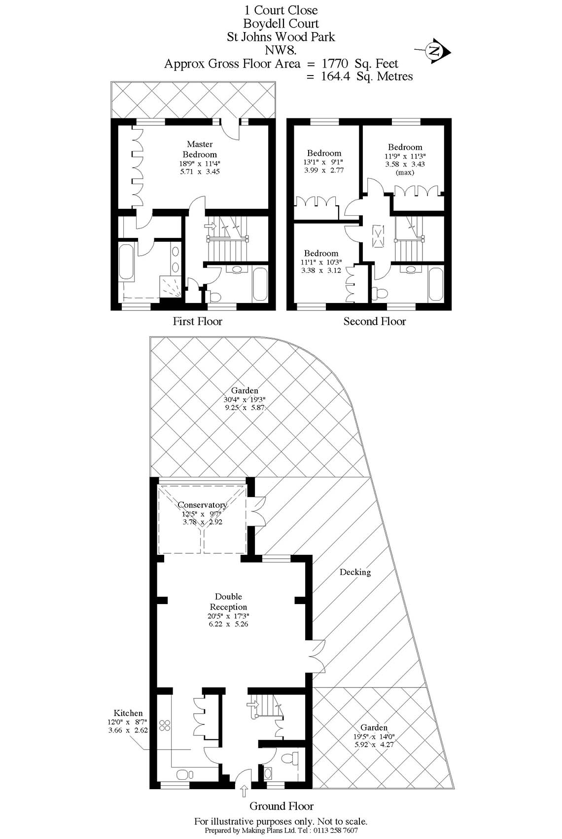
The property comprises of 4 large bedrooms, 3 bathrooms & a separate WC. On the ground floor the property also benefits from exceptional family and entertaining space and boasts a large family kitchen, reception area, conservatory and private garden.

Situated close to St john's wood, the property also offers a designated parking space (by separate negotiation) and a further first come first serve off street parking space, this property is within walking distance of St john's wood and Swiss Cottage tube station, and moments from Regents Park.

EPC

Floorplan

Floor Plan 1

IMPORTANT NOTICE

Descriptions of the property are subjective and are used in good faith as an opinion and NOT as a statement of fact. Please make further specific enquires to ensure that our descriptions are likely to match any expectations you may have of the property. We have not tested any services, systems or appliances at this property. We strongly recommend that all the information we provide be verified by you on inspection, and by your Surveyor and Conveyancer.

Call us now on 020 7449 0449