Liv International

9am - 7pm020 7449 0449

Description

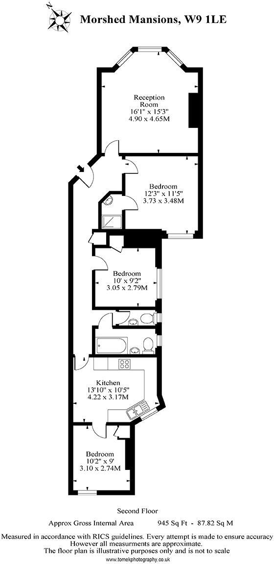
Summary - Bedrooms 3 | Bathrooms 2 | Receptions 1

Located on the second floor of a highly desirable and meticulously maintained building, this three bedroom apartment boasts stunning views over the renowned Paddington Recreation Ground.

Recently renovated to the highest standards, it features brand new fixtures and fittings, along with expansive high ceilings throughout. The property includes a spacious reception room, complete with a built-in media wall and fireplace, offering beautiful views of the park. A separate, fully equipped kitchen provides ample space for dining.

The master bedroom benefits from an en suite shower room, while two additional well sized bedrooms share a family bathroom, featuring a bathtub and overhead shower. There is also a convenient guest cloakroom. Residents can enjoy access to the well kept communal gardens, as well as the added bonus of private basement storage.

Morshead Road is a popular residential street in Maida Vale with a vast array of local amenities, cafes, bars, restaurants both Elgin Avenue and Lauderdale Parade are within easy reach along with Maida Vale Underground Station (Bakerloo Line) and a vast array of bus routes offering direct access into Central London.

EPC

Floorplan

Floor Plan 1

IMPORTANT NOTICE

Descriptions of the property are subjective and are used in good faith as an opinion and NOT as a statement of fact. Please make further specific enquires to ensure that our descriptions are likely to match any expectations you may have of the property. We have not tested any services, systems or appliances at this property. We strongly recommend that all the information we provide be verified by you on inspection, and by your Surveyor and Conveyancer.

Call us now on 020 7449 0449