Liv International

9am - 7pm020 7449 0449

Description

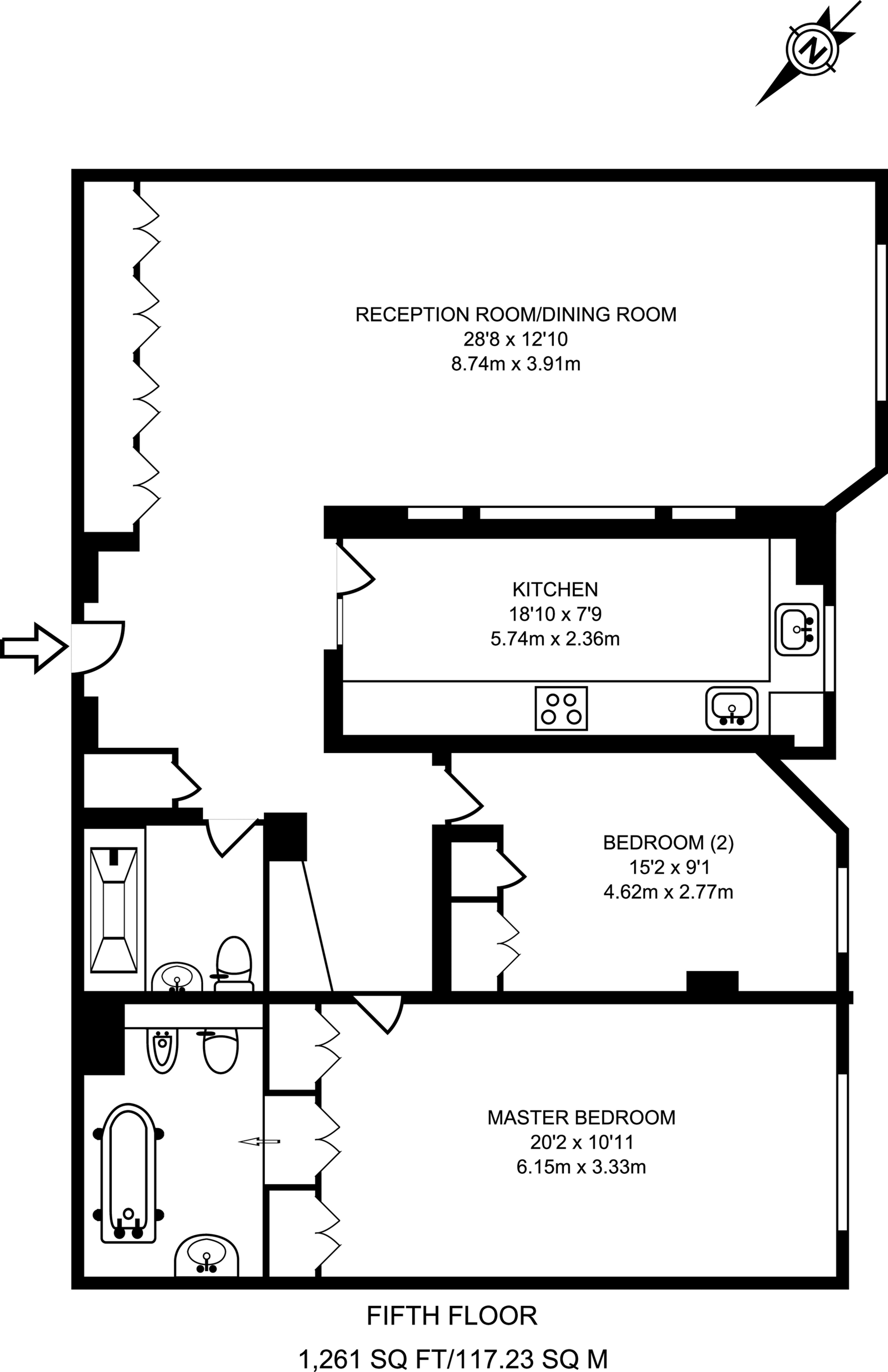
Summary - Bedrooms 2 | Bathrooms 2 | Receptions 1

An immaculately presented and exceptionally spacious apartment in the heart of St John's Wood.

The apartment comprises two large double bedrooms, a generously sized reception room, separate eat-in kitchen, and two large modern bathrooms.

Further benefits include being located just moments from the Wellington Hospital, 24-hour porter, and just a two-minute walk to St John's Wood High Street and Underground Station.

EPC

Floorplan

Floor Plan 1

IMPORTANT NOTICE

Descriptions of the property are subjective and are used in good faith as an opinion and NOT as a statement of fact. Please make further specific enquires to ensure that our descriptions are likely to match any expectations you may have of the property. We have not tested any services, systems or appliances at this property. We strongly recommend that all the information we provide be verified by you on inspection, and by your Surveyor and Conveyancer.

Call us now on 020 7449 0449